Featured image of post Construction Reception Desk Section Detail Drawing

Construction Reception Desk Section Detail Drawing

C4d max upk fbx oth obj.

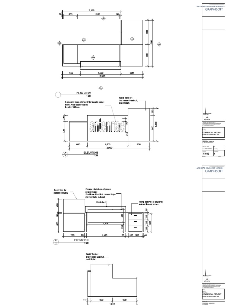
Construction Reception Desk Section Detail Drawing - These are the working drawings.

Built with Hugo Cuy
Theme Reang Cuy v.%!(EXTRA string=2.0.1) designed by Ngopi24Jam.cuy