Featured image of post Reception Desk Detail Cad Drawing

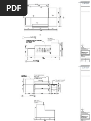
Reception Desk Detail Cad Drawing

Designs can be created and edited in much less time, as well as saved for future use.

Reception Desk Detail Cad Drawing - Reception desk cad block ✅.

Built with Hugo Cuy
Theme Reang Cuy v.%!(EXTRA string=2.0.1) designed by Ngopi24Jam.cuy